欢迎访问新乡市国盛机械设备有限公司官方网站

全国统一咨询热线:
18637334419
您现在的位置:主页 > 产品中心 >

FZC振动放矿机

核心产品

联系我们
新乡市国盛机械设备有限公司
地 址:新乡市凤泉区陈堡工业园区
联系人:郭经理 18637334419
销售部:0373-5419909
传 真:0373-5419669
邮 箱:helen28888@163.com
FZC振动放矿机
FZC振动放矿机
简介:FZC振动放矿机以振动电机为动力源,利用安装在振动电机主轴两端的偏心块在旋转运动中所产生的离心力来得到激振力,驱使振动放矿机台面和物料做周期直线往复振动
产品详情

FZC振动放矿机的产品简介
      FZC振动放矿机是以ZDJ振动电机为激振源,能够根据生产条件的不同要求,进行合理的选择和优化设计的新型放矿产品。
 
FZC振动放矿机
 
FZC振动放矿机的工作原理
      FZC振动放矿机主要是以振动电机为动力源的振动设备,利用安装在振动电机主轴两端的偏心块在旋转运动中所产生的离心力来得到激振力,*终驱使振动放矿机台面和物料做周期直线往复振动,当放矿机体振动的加速度垂直大于重力加速度时,机体中的物料被抛起,并按照抛物线的轨迹向前跳跃运动,抛起和下落在瞬间完成,由于振动电机的连续振动,放矿机体也连续振动,机体中的物料连续向前跳跃,这样就达到放矿和输送矿石的目的。
 
振动放矿机
 
FZC振动放矿机单台振动示意图
振动放矿机示意图
 
FZC振动放矿机双台振动示意图
 fzc振动放矿机

振动放矿机厂家
 
FZC振动放矿机的产品优势
1、整机制造比较简单合理,工程量小,投入资金较低、
2、设备的应有范围广,不仅能够在化工、煤炭等行业中使用,而且还是物料放出或装车的理想设备。
3、对于含水量较大的矿石,可以有效防止跑矿的现象发生。
4、该设备是一款振动设备,这样在振动物料时,也减少了悬拱或卡料的现象。
5、设备虽然体积小,但是出料效率高,而且出料还均匀稳定,易于控制,所消耗的能源也较低。
6、大的优势就是设备可用于多尘和台级上载物料有很大波动的环境。
 
FZC系列振动放矿机
 
FZC振动放矿机型号说明
fzc振动放矿机型号

振动放矿机价格

 
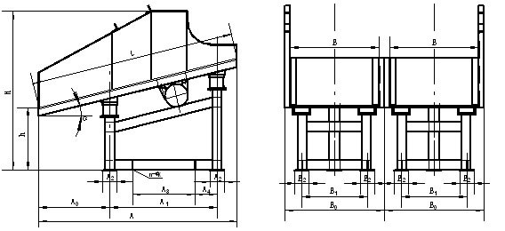
FZC振动放矿机安装说明
 
振动放矿机安装图
振动放矿机原理
放矿机价格
 
FZC振动放矿机的技术参数
型号 技术特性 埋设参数
台面长度L(m) 台面宽度B(m) 台面倾角a(度) 振动频率n(次/分) 振幅A(mm) 激振力P(N) 功率N(kw) 生产能力Q(t/h) 重量G(kg)

埋设深度LA(m)

眉线高度ho()m

眉线角Q(度)

FZC1.6/1-1.5

1.6

1.0

12

1300

0.8

10000

1.5

300-360

440

0.6

0.6

40

FZC1.8/0.9-1.5

1.8

0.9

12

1300

0.9

10000

1.5

350-400

430

0.6

0.7

40

FZC2/0.8-1.5

2.0

0.8

14

1300

0.9

10000

1.5

310-370

490

0.6

0.7

38

FZC2.3/0.7-1.5

2.3

0.7

16

1300

0.8

10000

1.5

290-330

575

0.7

0.7

38

FZC2/1-3

2.0

1.0

14

890

3.0

20000

3.0

850-1000

690

0.7

0.7

40

FZC2.3/0.9-3

2.3

0.9

14

890

3.0

20000

3.0

770-910

870

0.8

0.8

40

FZC2.3/1.9-3

2.3

1.2

14

890

1.8

20000

3.0

630-760

960

0.8

0.8

40

FZC2.8/1-3

2.8

1

18

890

1.7

20000

3.0

580-690

1000

0.9

0.9

41

FZC2.3/1.2-4

2.3

1.2

14

1320

0.9

30000

4.0

630-730

1010

0.9

0.8

41

FZC2.5/1.2-3

2.5

1.2

16

890

1.7

20000

3.0

590-720

980

0.8

0.8

39

FZC3.1/1-3

3.1

1

18

890

1.7

20000

3.0

560-670

1060

0.8

0.9

38

FZC2.5/1.2-4

2.5

1.2

16

1320

0.9

30000

4.0

660-770

1030

0.8

0.9

41

FZC3.5/0.9-4

3.5

0.9

18

1320

1.0

30000

4.0

730-830

1130

0.9

1.0

37

FZC2.5/1.4-5.5

4.0

1.6

14

920

2.0

40000

5.5

990-1180

1360

0.9

0.9

41

FZC3.5/1-5.5

3.5

1.0

18

920

2.0

40000

5.5

980-1150

1525

1.1

1.1

40

FZC2.8/1.4-5.5

2.8

1.4

14

920

1.8

40000

5.5

900-1080

1460

1.0

1.0

41

FZC3.1/1.2-5.5

3.1

1.2

14

920

1.8

40000

5.5

910-1090

1515

1.1

1.1

40

FZC3.1/1.4-5.5

3.1

1.4

14

920

1.7

40000

5.5

920-1120

1600

1.0

1.1

39

FZC3.5/1.2-5.5

3.5

1.2

14

920

1.8

40000

5.5

870-1050

1670

1.0

1.1

36

FZC4.5/1-5.5

4.5

1.0

18

920

1.8

40000

5.5

830-980

2040

1.0

1.1

34

FZC3.1/1.4-7.5

3.1

1.4

14

920

2.0

50000

7.5

1260-1500

1875

1.1

1.1

40

FZC3.5/1.2-7.5

3.5

1.2

14

920

2.1

50000

7.5

1220-1440

1810

1.2

1.2

39

FZC4.5/1-7.5

4.5

1

18

920

2.0

50000

7.5

1290-1510

2225

1.2

1.4

39

FZC3.5/1.4-7.5

3.5

1.4

14

920

1.8

50000

7.5

1160-1380

2000

1.0

1.2

37

FZC4/1.2-7.5

4.0

1.2

18

920

1.6

50000

7.5

870-1040

1935

1.2

1.2

39

FZC4/1.6-11

4.0

1.6

16

920

1.8

75000

11

1570×1870

2355

1.2

1.4

40

FZC3.1/1×2-4×2

3.1

1.0×2

18

1320

1.0

30000×2

4.0×2

1500×1740

2220

0.9

0.9

38

FZC3.5/1×2-5.5×2

3.5

1.0×2

18

920

2.0

40000×2

5.5×2

1960×2300

3050

1.1

1.1

40

FZC3.1/1.2×2-5.5×2

3.1

1.2×2

14

920

1.8

40000×2

5.5×2

1820×3180

3030

1.1

1.1

40

FZC3.5/1.2×2-5.5×2

3.5

1.2×2

14

920

1.8

40000×2

5.5×2

1740×2160

3310

1.0

1.1

36

FZC4/1.2×2-7.5×2

4.0

1.2×2

18

920

1.6

50000×2

7.5×2

1740-2080

3870

1.2

1.2

39


振动出矿机
 
FZC振动放矿机的环境要求标准
1、可频繁启动(不大于200次/小时)。
2、空气相对湿度不大于90%。
3、适应电压220v、380v、660v有防爆要求场合。
4、工作的环境空气温度不大于±400℃。
5、可用于多尘和台板上载矿量有较大的波动场合。

上一篇:螺旋给料机 下一篇:甲带给料机

新乡市国盛机械设备有限公司一家集振动设备研究、制造和销售为一体的股份制企业。全国统一销售热线: 18637334419